
West Blackhall Street, Greenock
£2,495pcm
🏢 Property Type | Commercial Hospitality
Fully functioning kitchen
Great high street location






Key Features:
Great high street location
Fully functioning kitchen
Outdoor license for additional seating
60 covers
Furnished
Large basement
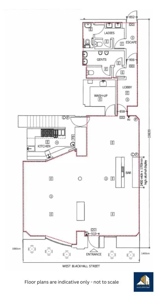
Description
The restaurant offers accommodation on the ground floor of a traditional building. Fenwick Tapas offers around 60 covers with fixed bar area and an outdoor license for additional seating at the front of the building. The premises has a large hatch through to a fully fitted kitchen area, cellar and ladies and gents toilets. The business has been owned by our client for the past few years. We feel the outlet would suit a hand on operator who would be able to take the business to the next level. Internal viewing recommended to be fully appreciated. Fenwick 47 is situation in one of Greenock’s busiest streets, West Blackhall Street located close to the waterfront, Oakmall Shopping Centre and Tesco Extra. The unit is surround by a good mix of local and high street shops.
LICENSE
The premises benefit from a Premises Licence.
ENERGY PERFORMANCE CERTIFICATE (EPC)
The Energy Rating is available upon request.
RATES
We are advised that the Rateable Value is £12,000. Interested parties are advised to check
this information themselves.
PRICE
Offers £2,500 PCM are invited for the trade fixtures, fittings and equipment together with
the heritable interest in the property